Ekonomiczny w budowie dom z poddaszem, dachem dwuspadowym, garażem i dużym PG
Ostatnia sztuka w świetnej cenie!
2 realizacje
inni już budują ten dom
zobacz
zmiany
dopasuj projekt do swoich potrzeb
więcej
finansowanie
przygotujemy ofertę kredytu
więcej
Plac Budowy
Realizacje budowy Z107
historia Twojej budowy
Zobacz jak budują inni
Kalkulacja szacunkowa Z107
wg cennika sekocenbud 1 kw. 2026
| Ceny średnie | Ceny minimalne | |
|---|---|---|
|
Stan zerowy
| 92 967 zł | 83 007 zł |
|
Stan surowy otwarty
| 339 058 zł | 302 730 zł |
|
Stan surowy zamknięty
| 546 867 zł | 488 274 zł |
| Instalacje | 82 030 zł | 73 241 zł |
|
Prace wykończeniowe
| 246 090 zł | 219 723 zł |
| Razem | 874 988 zł | 781 239 zł |
Ten dom możesz postawić metodą gospodarczą już za:
729 157 zł
Projekt
+Kredyt
Kredyt Na Dom
W naszej ofercie znajdziesz kredyt dla klientów Z500 planujących budowę domu.Niezależny doradca wynegocjuje dla Ciebie najbardziej atrakcyjną ofertę spośród oferty 20 polskich banków. Zależy nam abyś budując dom Z500 korzystał z najlepszej na rynku oferty finansowej. chcę kredyt
Kosztorys szczegółowy
zestawienie materiałów
Jeżeli chcesz mieć aktualny kosztorys oraz łatwo dopasować go do swojej budowy i realnych wydatków, wybierz edytowalny Pakiet Kosztorysowy+




Zmiany w projekcie
Chcesz wybudować dom według tego projektu lecz potrzebujesz wprowadzić w nim kilka zmian?
Skorzystaj z usług naszego STUDIA ADAPTACJI:
- bezpłatna wycena zmian i adaptacji
- ponad 100 sprawdzonych architektów na terenie całej Polski
- najlepsza oferta cenowa na zmiany i adaptacje
Komentarze
jestem zainteresowany tym projektem.
1.
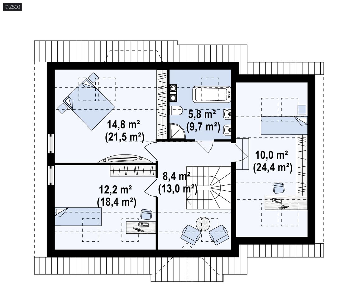
Tylko, czytałem w komentarzach, że można pomieszczenie gospodarcze na parterze zamienić na pokój a komin w gospodarczym dodatkowy trzeba zrobic tak? ( bo tam by kotłownia była wtedy).
2.
Czy można z pomieszczenia gospodarczego zrobić wyjście na tyły domu?
3.
W łaziencie na parterze zmieści się kabina przy obecnym wymiarze?
4.
Czy na piętrze można podnieść o 1 pustak dach np., tak by uzyskać wyższe pomieszczenia?
Dziękuję za odpowiedź.
Kabina się zmieści ale zostanie mało miejsca.
Zmiany można również zamówić w Z500 - https://z500.pl/zmiany-w-projekcie.html
jestśmy z mężem bardzo zainteresowani tym projektem jeszcze nie kupiliśmy
bardzo by nam zależało zeby zobaczyc ten dom na żywo czy ktoś z województwa lubuskiego lub zachodniopomorskiego budował ten dom ???
dodatkowo poprosiłabym o kilka fotek tego domu jeżeli ktoś juz zakonczył budowę
bede bardzo wdzięczna :)
mój emial: [email protected]
właśnie zakupiłam projekt. Chciałabym zobaczyć jak wygląda dom z podniesioną ścianą kolankową, oraz zdięcja salonu. Jeśli można prosić o jakieś zdjęcia to byłabym wdzięczna. Mój adres: [email protected]
Mam pytanie do Pana Darka. Ile kosztował Pana stan surowy zamknięty z instalacjami? Prosimy również o zdjęcia na adres [email protected]. Dziękujemy z góry:)
Czy można z kotłowni utworzyć malutką sypialnię a pomieszczenie gospodarcze przerobić na kotłownię?
@onet.pl . Z góry dziękuję ; ) .
Zmiany te może wprowadzić lokalny architekt na etapie adaptacji projektu do warunków odpowiednich dla Pani działki.
Pozdrawiam i gratuluję takiego ładnego domku!
A moge poprosic o jakies zdjecia? a w jakim rejonie polski wybudowal pan domek??