Inne dzień budowy Ze względu na większą społeczność budujących i zaglądających prowadzę swojego bloga w innym miejscu.http://www.naszez35.mojabudowa.pl/ 30 września 2016, 08:0900 dni temu
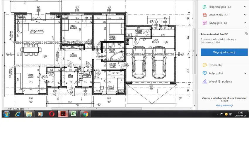
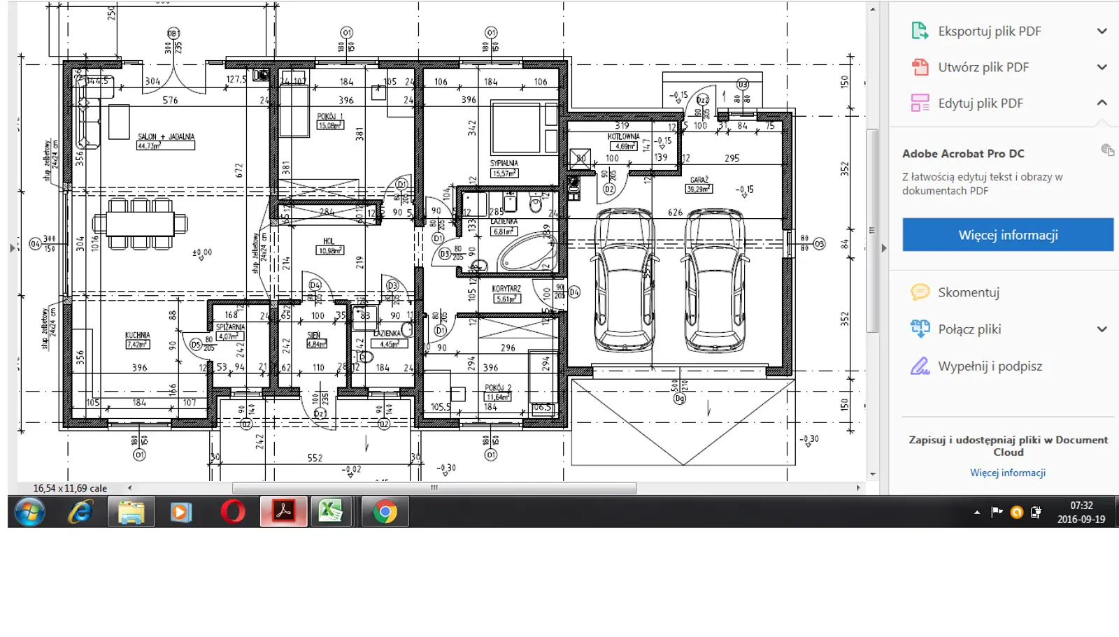
Projekt i formalności dzień budowy Witam, kilka słów o naszym projekcie. Zdecydowaliśmy się na z35 z pracowni Z500. Szukaliśmy domu, który:- będzie parterowy. Kilka razy spałam u koleża... 19 września 2016, 07:5001 dni temu
Projekt i formalności dzień budowy Bardzo proszę o pomoc osoby doświadczone w budowie - najlepiejekspertów(!) o poradę. Mamy kilka decyzji do podjęcia:1. Rodzaj stropu. W projekcie mamy... 5 września 2016, 15:1300 dni temu
Projekt i formalności dzień budowy Witam serdecznie,w końcu po kilkunastu miesiącach poszukiwań wybraliśmy projekt Z35.Oglądaliśmy z24, z273a I LG i Z35. Wszystkie domy były podobnej wi... 5 września 2016, 11:3211 dni temu