działamy online prawie cały czas, nawet w okresie świątecznym :) 🎅🏻🎄
rabat na projekt i specjalne promocje
rysunki szczegółowe do projektu
oferta na budowę i kredyt
kontakt z innymi użytkownikami
darmowa wysyłka
Tablica
Budowy
Mapa
Rankingi
Wyzwania
Z187L po naszemu ...
etap: budowa ukończona
Tomasz Kryszak
wielkopolskie
, Poznań
[email protected]
9142
Wyświetleń
7
Lubi to
9
Komentarzy
2
Obserwuje
budżet
450 000 zł
wydatki
0 zł
Popularność Twojej budowy
Historia
Zdjęcia
Koszty
Wyzwania
chronologicznie
etapami
Projekt i formalności
dzień budowy
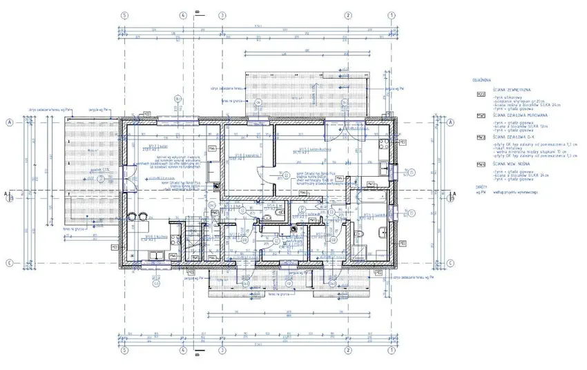
Rzuty ...
22 stycznia 2014, 14:18
0
2
dni temu
Instalacje i wyposażenie
dzień budowy
Media ...
22 stycznia 2014, 12:00
0
1
dni temu
Elewacja i wykończenie
dzień budowy
Elewacja ...
22 stycznia 2014, 11:50
9
1
dni temu
Dach i więźba
dzień budowy
Dach ...
22 stycznia 2014, 11:34
0
1
dni temu
Ściany i stropy
dzień budowy
Ściany ...Strop ...
22 stycznia 2014, 11:26
0
1
dni temu
Działka i fundamenty
dzień budowy
Fundament ...
21 stycznia 2014, 23:02
0
1
dni temu
Aby zamknąć samouczek, kliknij tutaj lub naciśnij Esc
Aby wyłączyć, przejdź do
ustawień